Základní informace
Rohový bytový dům se nachází na ulici U Uranie, což poskytuje skvělou dostupnost MHD, ale přitom Vám nabízí klidné prostředí. Dům je velmi dobře udržovaný a spravovaný. Jednu z dalších výhod je, že v blízkosti domu je veškeré zázemí a služby pro mladý pár, ale zároveň i pro rozrůstající se rodinu. Byt je tedy vhodný jako startovací bydlení nebo pro investiční účely.
Byt prošel rozsáhlou rekonstrukcí v roce 2016 a nabízí komfortní a prakticky řešený prostor s důrazem na styl i funkčnost. Bytová jednotka má velmi chytrou a praktickou dispozici. Najdete v něm velký a světlý obývací pokoj, ve kterém se taktéž nachází krb. Součástí obývacího pokoje je kuchyňský kout, který je samozřejmě vybaven kuchyňskou linkou se všemi potřebnými vestavěnými spotřebiči. I z kuchyňského okna jde krásně vidět ven a velká okna přináší dostatek světla. V kuchyni je na podlaze barevně vymalovaná stěrka.
Z obývacího pokoje vedou vstupy i do dvou pokojů, které si lze přizpůsobit dle svých představ, neboť z nich lze udělat jak ložnici, tak i například pracovnu.
Výhodou bytu je komora, sloužící jako technická místnost. Vejde se tam pračka i sušička. Kromě kotle na vytápění a ohřev vody je zde dostatek prostoru na úložné systémy.
Vyzkoušejte si velmi komfortní bydlení v prostorném a neobvyklém bytě s duší. Užijte si všechny výhody, které nabízí nejen samotný byt, ale i celé Holešovice!
Výhody nemovitosti:
- Praktická a velmi žádaná dispozice 3KK
- Perfektně udržovaný byt
- Využívání sklepní kóje
- Po rekonstrukci v roce 2016
- Hezký výhled na okolí
- V žádané lokalitě, skvělé spojení MHD, dobrá dostupnost do centra města
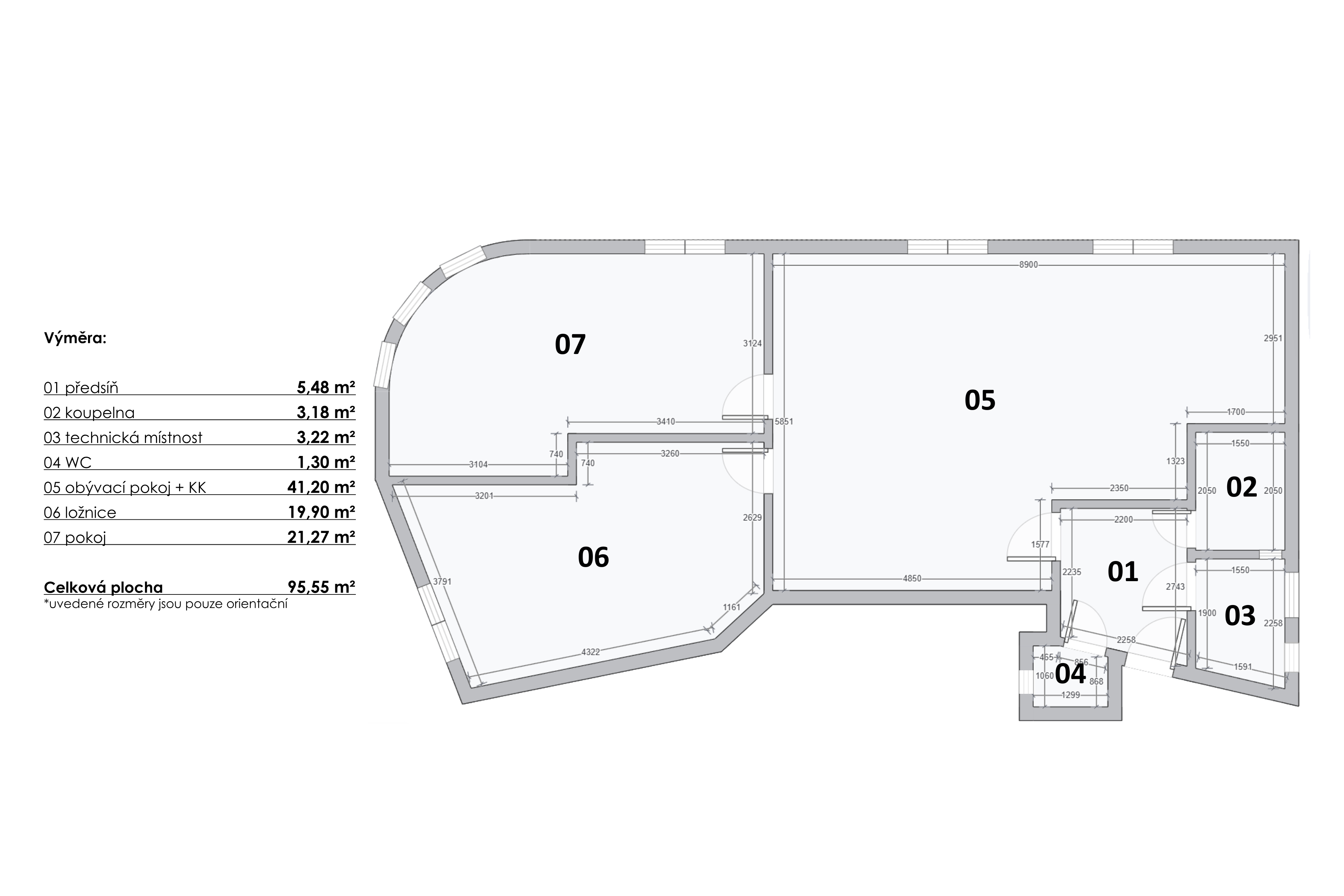
Rozměry (orientační)
Obývací pokoj s kuchyňským koutem: 41,2 m2
Pokoj č. 1: 21,27 m2
Pokoj č. 2: 19,9 m2
Předsíň: 5,48 m2
Koupelna: 3,18 m2
WC: 1,3 m2
Technická místnost/Komora: 3,22 m2
Celkem: cca 95,5 m2
Náklady na bydlení (měsíčně):
Měsíční předpis záloh: 5 120 Kč (včetně 2 652 Kč fond oprav)
Elektřina: 1 350 Kč měsíční záloha
Plyn: 3 340 Kč měsíční záloha
Další informace o bytu:
- V užívání sklepní kóje
- Mechanické zabezpečení na vchodových dveřích bytu
- Krbová vložka – na dřevo
- Zapsáno zástavní právo – bude uhrazeno a vymazáno v rámci prodeje























